| Prijs | € 250.000,- k.k. |
| Type object | Appartement, portiekwoning |
| Woonoppervlakte | 72,1 m² |
| Aanvaarding | In overleg |
| Status | Verkocht |
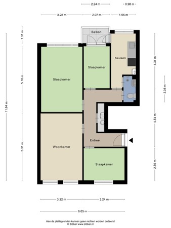
Licht en praktisch ingedeeld 4-kamerappartement in levendig Transvaal Dit nette appartement van ca. 72 m² ligt op de eerste verdieping van een klassiek portiek. De woning heeft drie slaapkamers en een lichte woonkamer en beschikt ook over een balkon. De ligging is ideaal: midden in de levendige wijk Transvaal, met winkels, supermarkten, scholen en openbaar vervoer op loopafstand. Binnen enkele minuten bereik je de Haagse Markt, het centrum en belangrijke uitvalswegen. Een perfecte locatie voor wie comfortabel en centraal wil wonen. Indeling: Via het open portiek bereik je de entree op de eerste verdieping. Vanuit de hal toegang tot de woonkamer, drie slaapkamers, het balkon, de keuken, badkamer met douche, wastafel en toilet. Bijzonderheden: - Bouwjaar 1922 - Circa 72 m² woonoppervlakte - Erfpacht, eeuwigdurend heruitgegeven, grondwaarde € 2.870,- huidige canon € 58,84 p.j. (incl. beheerskosten) - Actieve VvE - Rondom dubbel glas - Verwarming via cv-combiketel - Energielabel E - Oplevering in overleg
| Referentienummer | 05124 |
| Vraagprijs | € 250.000,- k.k. |
| Servicekosten | € 85,- |
| Status | Verkocht |
| Aanvaarding | In overleg |
| Aangeboden sinds | Zaterdag 18 oktober 2025 |
| Laatste wijziging | Vrijdag 5 december 2025 |
| Type object | Appartement, portiekwoning |
| Woonlaag | 2e woonlaag |
| Soort bouw | Bestaande bouw |
| Bouwperiode | 1922 |
| Dakbedekking | Bitumen |
| Type dak | Platdak |
| Isolatievormen | Dubbel glas |
| Woonoppervlakte | 72,1 m² |
| Inhoud | 238 m³ |
| Oppervlakte gebouwgebonden buitenruimte | 2,9 m² |
| Aantal bouwlagen | 1 |
| Aantal kamers | 4 (waarvan 3 slaapkamers) |
| Aantal badkamers | 1 |
| Energielabel | E |
| CV ketel | Intergas |
| Warmtebron | Gas |
| Bouwjaar | 2020 |
| Combiketel | Ja |
| Eigendom | Eigendom |
| Warm water | CV-ketel |
| Verwarmingssysteem | Centrale verwarming |
| Badkamervoorzieningen | Douche Toilet Wastafel |
| Heeft een balkon | Ja |
| Heeft kabel-tv | Ja |
| Ingeschreven bij de KvK | Ja |
| Jaarlijkse vergadering | Ja |
| Periodieke bijdrage | Ja |
| Reservefonds | Ja |
| Meer jaren onderhoudsplan | Ja |
| Opstal verzekering | Ja |
| Kadastrale aanduiding | 's-Gravenhage AB 6196 |
| Perceeloppervlakte | 130 m² |
| Omvang | Appartementsrecht of complex |
| Eigendomsituatie | Erfpacht |
| Lasten | € 25,84 per jaar |