Beschrijving

Wonen in een lichte en goed ingedeelde bovenwoning op een centrale locatie in Den Haag?
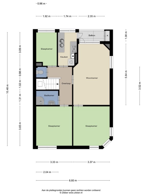
Tafelbergstraat 32 is een 4-kamerappartement op de tweede etage met drie slaapkamers, aparte keuken en een fijn balkon op het oosten/noordoosten. Ideaal voor starters en jonge gezinnen!

Indeling
Entree via open portiek, eigen voordeur op de eerste verdieping met trap naar de woning. Hal met daklicht en toegang tot alle vertrekken.

Lichte woonkamer met toegang tot het balkon aan de achterzijde. Aparte keuken met gaskookplaat, oven, afzuigkap en opstelplaats CV-combiketel. Nette badkamer met douchecabine en wastafel. Separaat toilet.

Drie slaapkamers: twee aan de voorzijde, één aan de achterzijde. De gehele woning is voorzien van laminaatvloeren en dubbele beglazing met kunststof kozijnen.

Kenmerken
- Woonoppervlak ca. 70 m² (NEN 2580)
- 4 kamers (waarvan 3 slaapkamers)
- Balkon op het oosten/noordoosten
- Kunststof kozijnen met dubbel glas
- HR CV-combiketel (Intergas)
- VvE-bijdrage € 135,- per maand
- Eeuwigdurend afgekochte erfpacht (geen canonbetalingsverplichting)
- Oplevering in overleg 

Locatie
Gelegen in het populaire Transvaalkwartier, met winkels, openbaar vervoer, scholen, het Zuiderpark en de Haagse Markt in de directe omgeving. Het centrum van Den Haag is snel bereikbaar.

Benieuwd naar de mogelijkheden?
Maak snel een afspraak voor een bezichtiging!

Kenmerken